Mmmm..... cookies...

Afdeling

Casa Nova
584-0

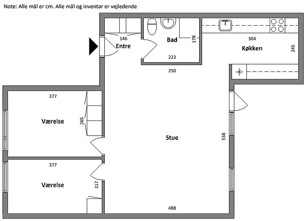
Thrigesvej 9. Etage/dør: 3. tv.
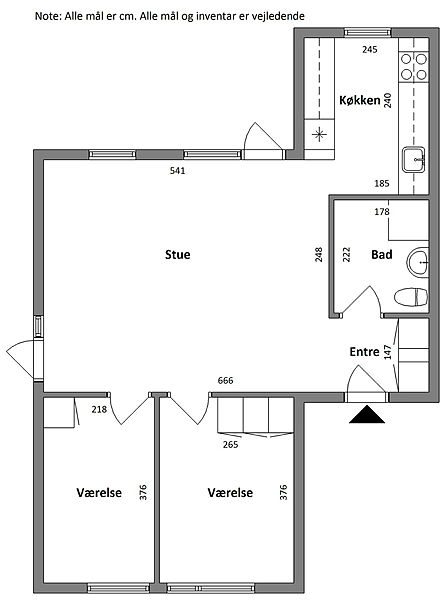
Thrigesvej 11A, 11B, 11C, 11D, 13A, 13B, 13C, 15A, 15B, 15C. Etage/dør: 1. th., 2. th., st. th.
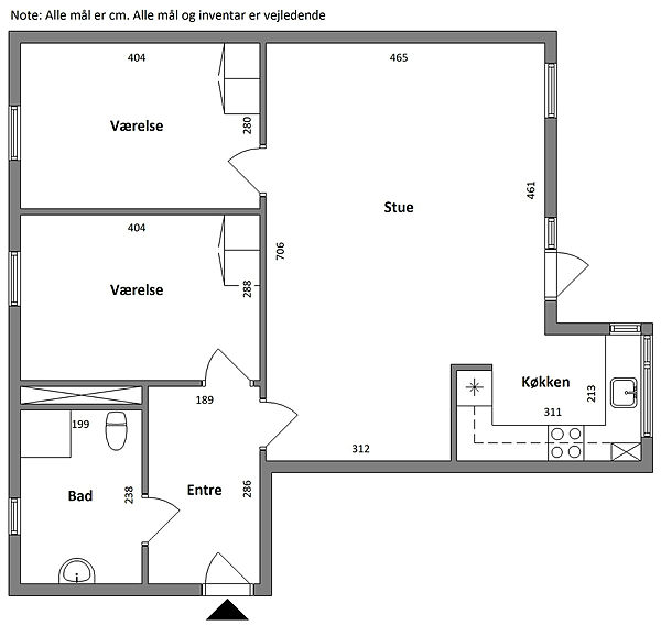
Thrigesvej 11A. Etage/dør: 1. tv., 2. tv., st. tv.
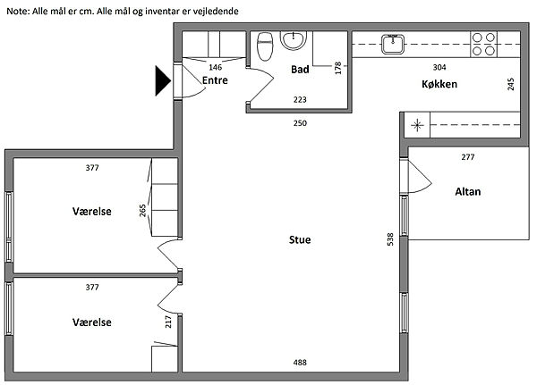
Thrigesvej 9. Etage/dør: 1. tv., 2. tv., st. tv.

Boliginfo

Adresser

Thrigesvej 11-15 A-D, 9,
7400 Herning

Boligtype

Antal boliger

37

Energimærke

C

Andet

Altan: Ja
Elevator: Ja
Husdyr tilladt: Ja

Værelser

3

Størrelser

80-108 m2

Husleje

6777-9656 kr.

Indskud

18200-27500 kr

Ventetid

1 år

Skriv dig op her!