Mmmm..... cookies...

Afdeling

Casa Nova
584-0

Thrigesvej 13D, 15D. Etage/dør: 1. th., 2. th., st. th.

Boliginfo

Adresser

Thrigesvej 11-15 A-D, 9,
7400 Herning

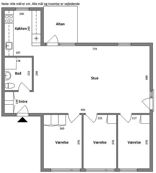
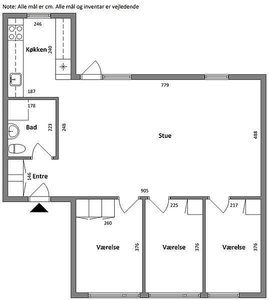
Boligtype

Antal boliger

6

Energimærke

C

Andet

Altan: Ja
Elevator: Ja
Husdyr tilladt: Ja

Værelser

4

Størrelser

103 m2

Husleje

8327 kr.

Indskud

23200 kr

Ventetid

1 år

Skriv dig op her!